Casa di corte in vendita

Villa Castelli, Via Sc2
€ 260.000
3 locali 3 locali
95 Mq 95 Mq
2 bagni 2 bagni

Casa di corte in vendita

Villa Castelli, Via Sc2

Descrizione annuncio

Autentici Trulli a 6 Coni con Lamie nella Valle d’Itria

Nel cuore della suggestiva Valle d’Itria, a soli 9 km da Ceglie Messapica in direzione Villa Castelli, proponiamo in vendita un affascinante complesso di trulli e lamie dal grande carattere.

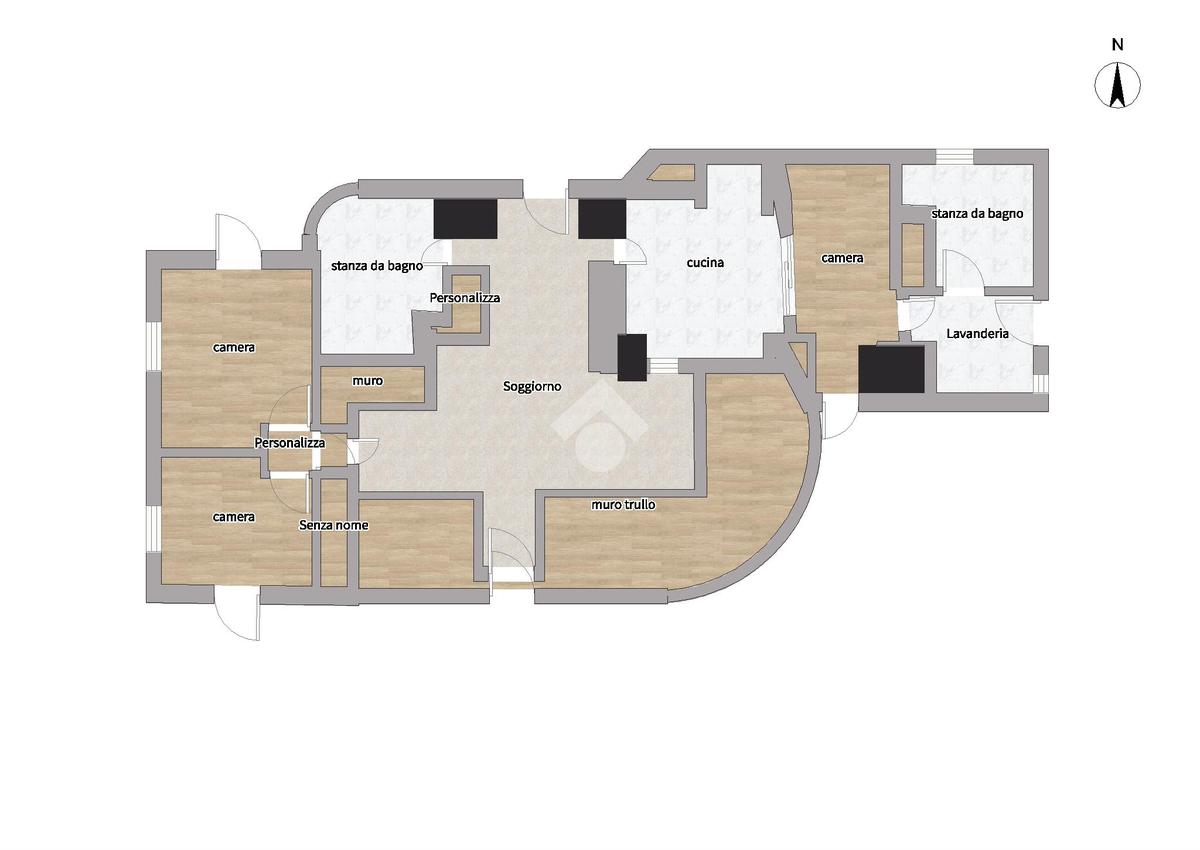
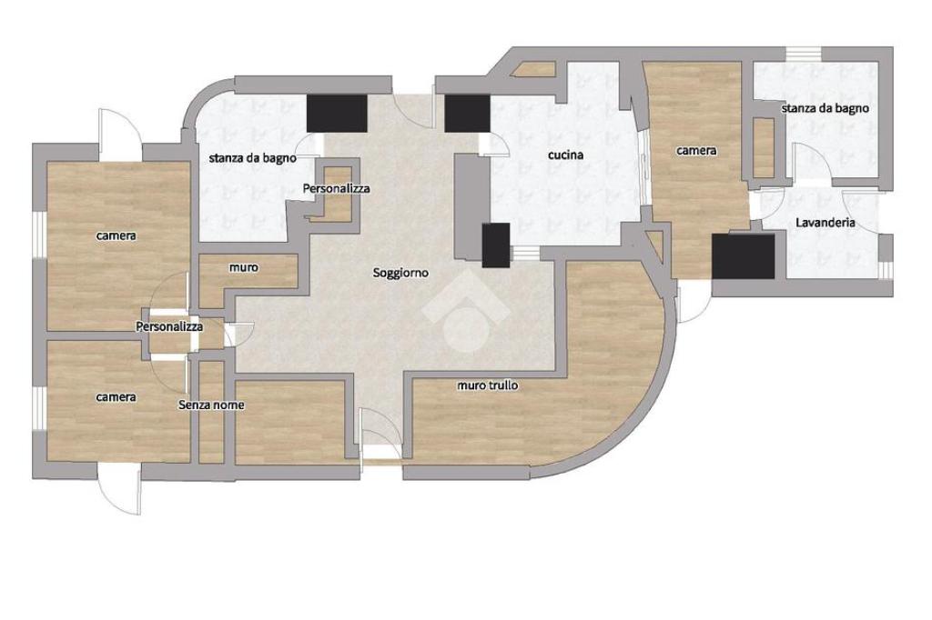
La proprietà è composta da un gruppo di trulli a 6 coni di ampie dimensioni con lamie, ristrutturati esternamente circa 4 anni fa, con recupero della splendida pietra locale a vista. Internamente sono già stati avviati alcuni interventi, offrendo la possibilità di personalizzare gli spazi secondo le proprie esigenze.

Il corpo centrale dei trulli permette di realizzare una zona giorno con soggiorno, cucina, bagno e una camera da letto, mentre le lateralmente si possono ricavare altre due camere, un secondo bagno e una zona lavanderia. La presenza di 6 ingressi indipendenti rende l’immobile estremamente versatile, ideale anche per uso ricettivo.

Completa la proprietà un terreno di 8.532 mq con ulivi giovani e secolari, immerso nella quiete e nei profumi della campagna pugliese.

Una proposta unica, dove tradizione, charme e potenzialità si incontrano.

Authentic 6-Cone Trulli with Lamie in the Itria Valley

In the heart of the charming Itria Valley, just 9 km from Ceglie Messapica towards Villa Castelli, we offer for sale a fascinating complex of trulli and lamie with great character.

The property consists of a group of large 6-cone trulli with blades, renovated externally about 4 years ago, with the recovery of the splendid local stone on display. Internally, some interventions have already been launched, offering the possibility of customizing the spaces according to your needs.

The central body of the trulli allows for the creation of a living area with living room, kitchen, bathroom and a bedroom, while the side rooms can be created with two more bedrooms, a second bathroom and a laundry area. The presence of 6 independent entrances makes the property extremely versatile, also ideal for accommodation use.

The property is completed by an 8,532 m2 plot of land with young, centuries-old olive trees, immersed in the quiet and scents of the Apulian countryside.

A unique proposal, where tradition, charm and potential meet.

Mostra tutto

Caratteristiche

Rif.:
61162206
Piano:
1 di 1 (Piano terra)
Posti auto:
2
Terrazzi:
1
Camere da letto:
3
Arredamento:
Assente
Mostra tutto
Prezzo Prezzo
€ 260.000
Rata mutuo Rata mutuo
€ 1.226 / mese
Spese annue Spese annue
€ 0
Proponi il tuo prezzoProponi il tuo prezzo
Immobile valutato con T·Valuta

Classe Energetica

G
G
G
G
G
G
G
G
G
EP globale non rinnovabile:
175.00 kW h/m² anno
EP globale rinnovabile:
175.00 kW h/m² anno
EP invernale del fabbricato:
EP estiva del fabbricato:
Anno di costruzione:
1900
Riscaldamento:
Assente

Ti interessa visionare l'immobile?

Fissa un appuntamento  Fissa un appuntamento

Richiedi informazioni

Clicca su Leggi per aprire l'informativa
* Questi campi sono obbligatori

Calcola il tuo mutuo

Semplice e senza impegno
Anticipo

( % )
Mutuo

( % )

pochi semplici passi

inserisci i tuoi dati
Questionario completato
Grazie per aver richiesto un appuntamento senza impegno con un nostro Consulente del Credito e Assicurativo.

Hai inserito correttamente tutti i dati necessari e a breve riceverai una e-mail con un link da convalidare per inviare i tuoi dati.
Affiliato
Studio Ceglie Messapica Sas
Via Porta di Giuso, 53 72013 Ceglie Messapica (BR)

Il nostro staff


  • Stefano Quarta
    Affiliato

  • Beatrice Di Caro
    Coordinatrice

  • Daniele Tagliente
    Collaboratore
Via Porta di Giuso, 53 72013 Ceglie Messapica (BR)
Zona: Ceglie Messapica
Mostra su mappa
Affiliato
Studio Ceglie Messapica Sas
Via Porta di Giuso, 53 72013 Ceglie Messapica (BR)

2026 Tecnocasa Franchising S.p.A. - P. IVA 08365160152 - Via Monte Bianco 60/A 20089 Rozzano (MI). Ogni agenzia ha un proprio titolare ed è autonoma. Privacy policy | Policy utilizzo | Cookie policy